

















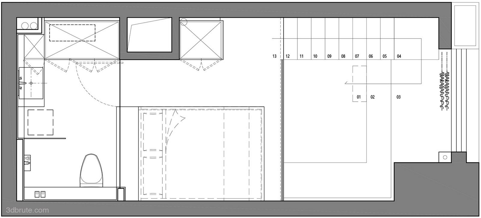
53m2-Modern single apartment in Kiev-Ukraine
Advertisements
Article Categories:
Nordic style
Please Login to leave a comment.