
























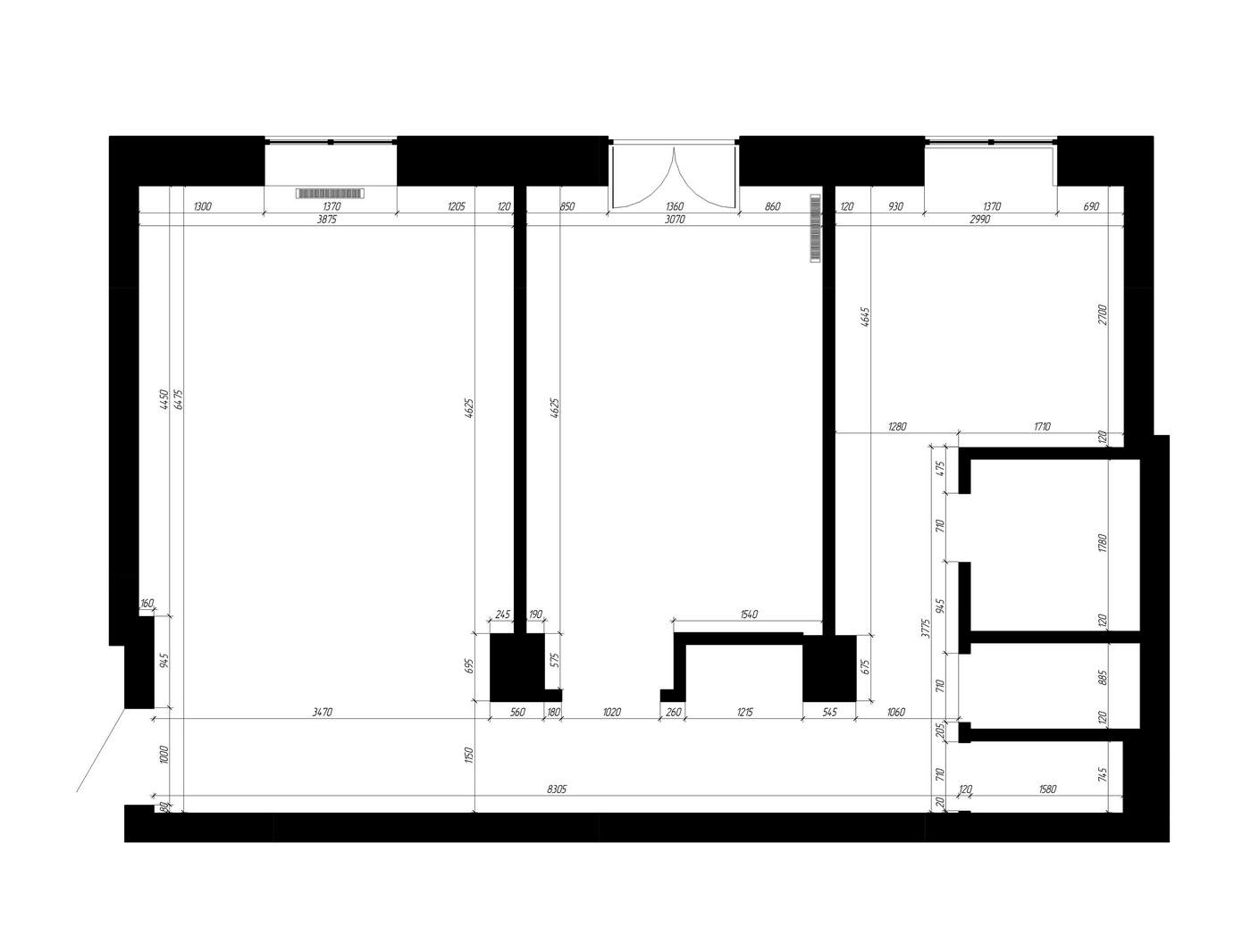
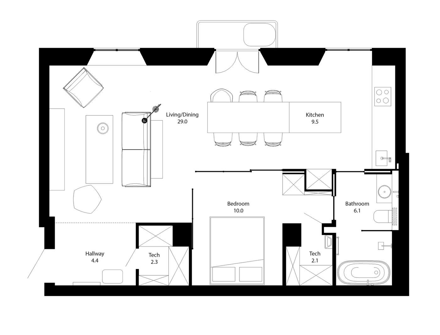
62m2 personality apartment design
Advertisements
Article Categories:
Modern style
Please Login to leave a comment.