




















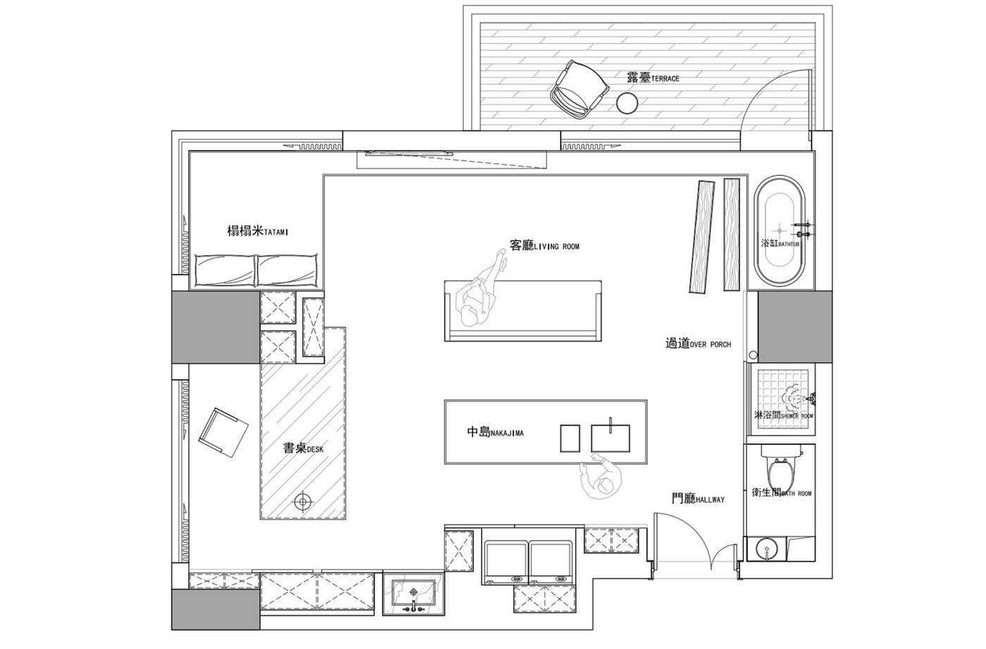
City Island, Nanjing – Simple Line Construction
Advertisements
Article Categories:
Modern style
Please Login to leave a comment.