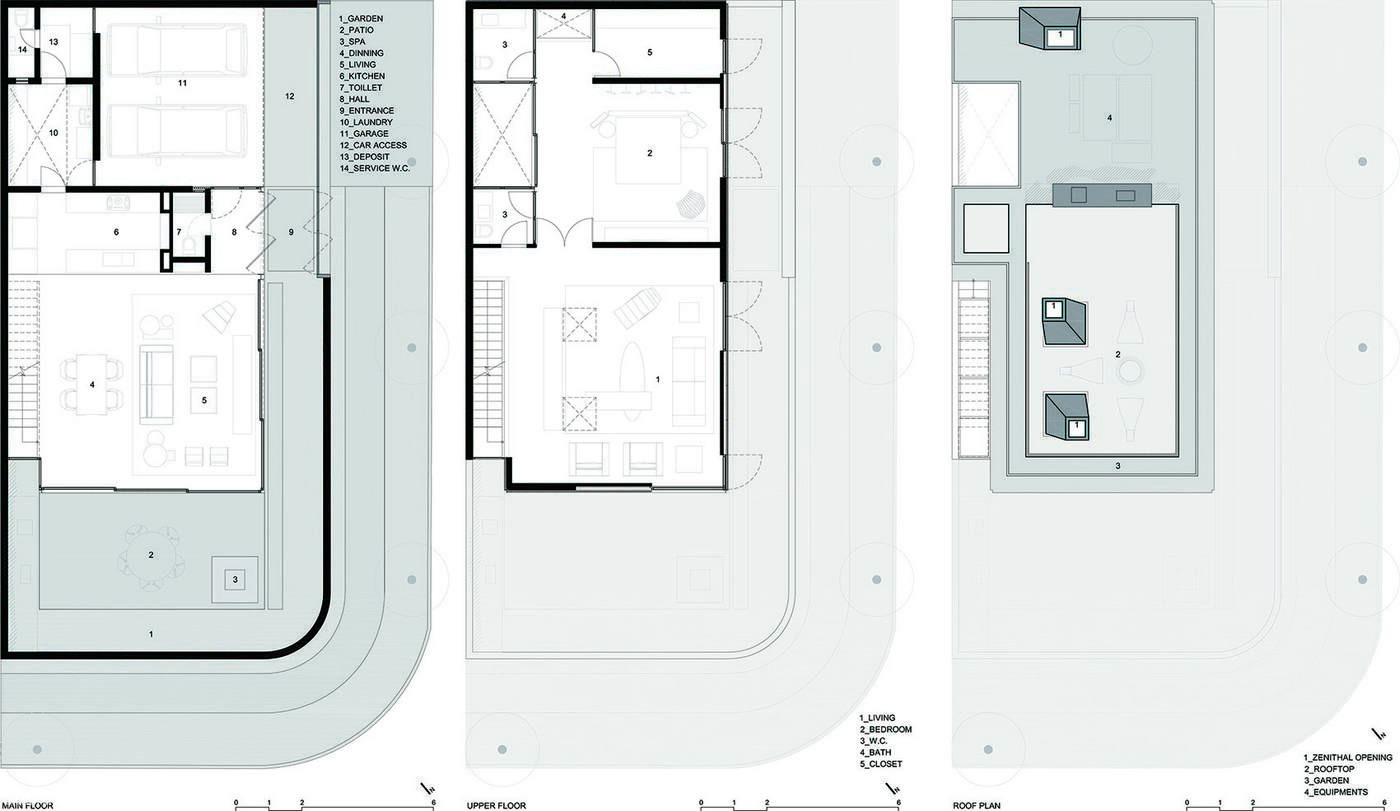
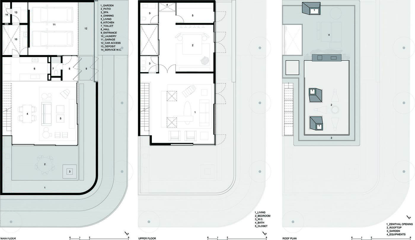
Box House, Brazil FC Studio Home > idea > Modern style > Box House, Brazil FC Studio محمد تركي 156 followers × Copy Link Share on WhatsApp Share on LinkedIn Share on Reddit Share on Telegram Share via Email Share on Line Share on Facebook Share on X Share on Pinterest 2,816 Advertisements Related products Show more products ▼ Tags: idea Please Login to leave a comment.