













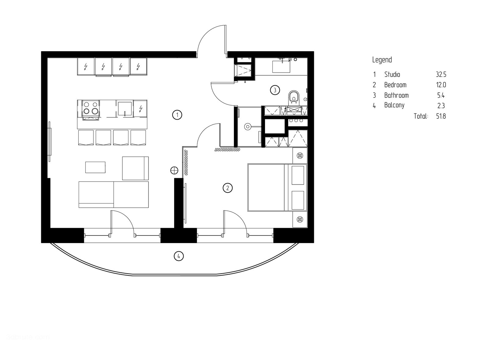
Classic black and white gray apartment-52m2 Sea Sky Apartment minimalist visual enjoyment
Advertisements
Please Login to leave a comment.














Please Login to leave a comment.