



























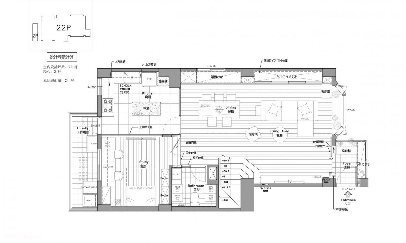
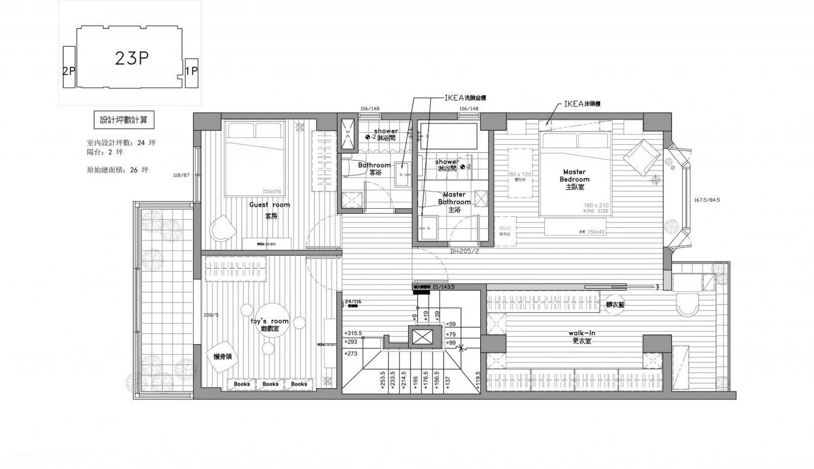
Eleven sunny space design that light scenery-3 people 5 years of American life
Advertisements
Please Login to leave a comment.




























Please Login to leave a comment.