






















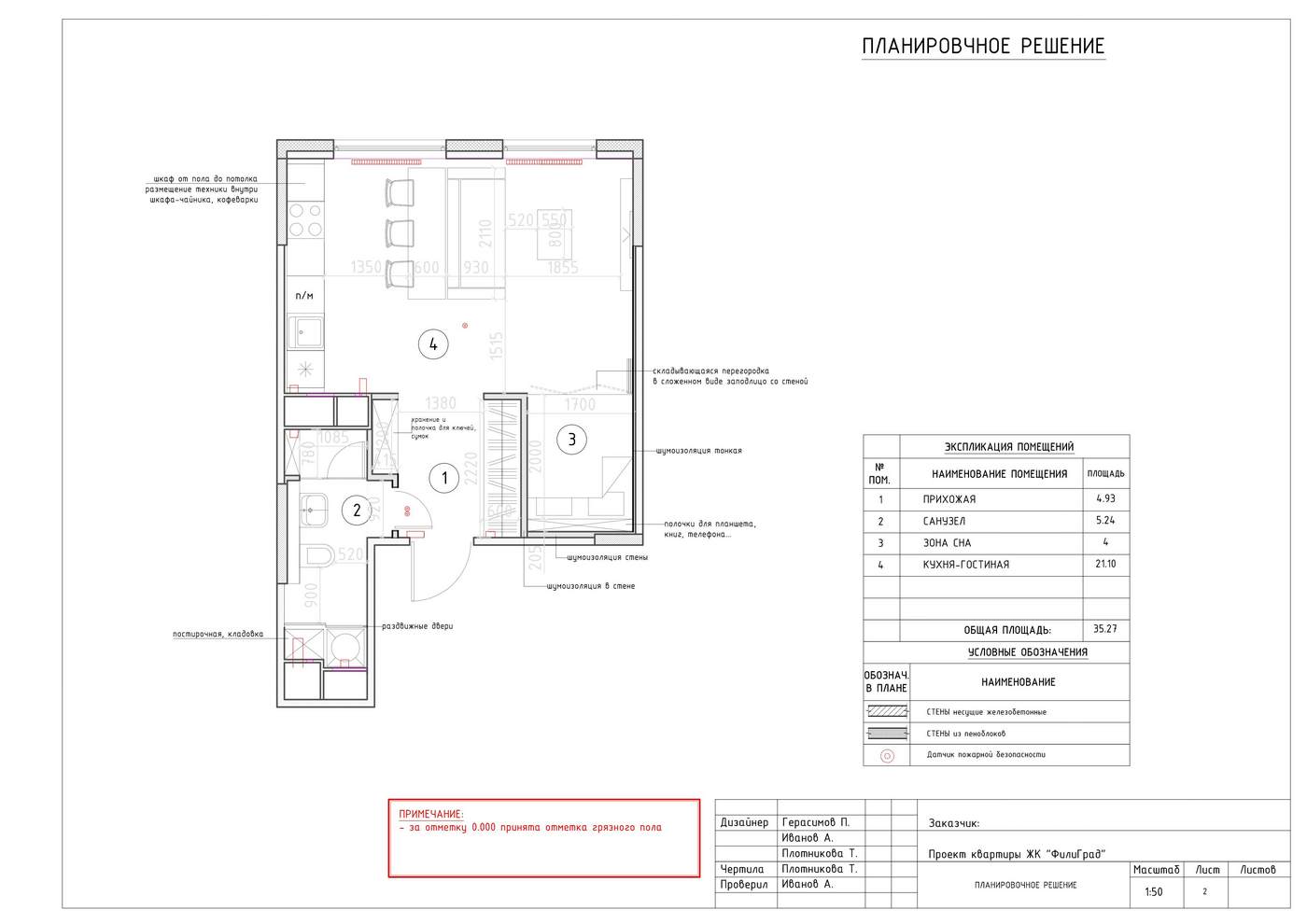
FILIGRAD – 34m2 modern style apartment
Advertisements
Article Categories:
Modern style
Please Login to leave a comment.