





























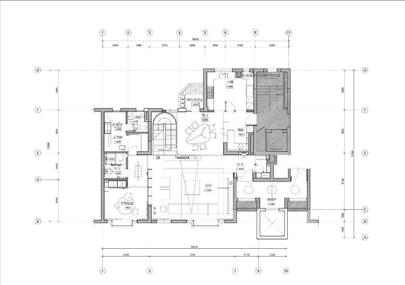
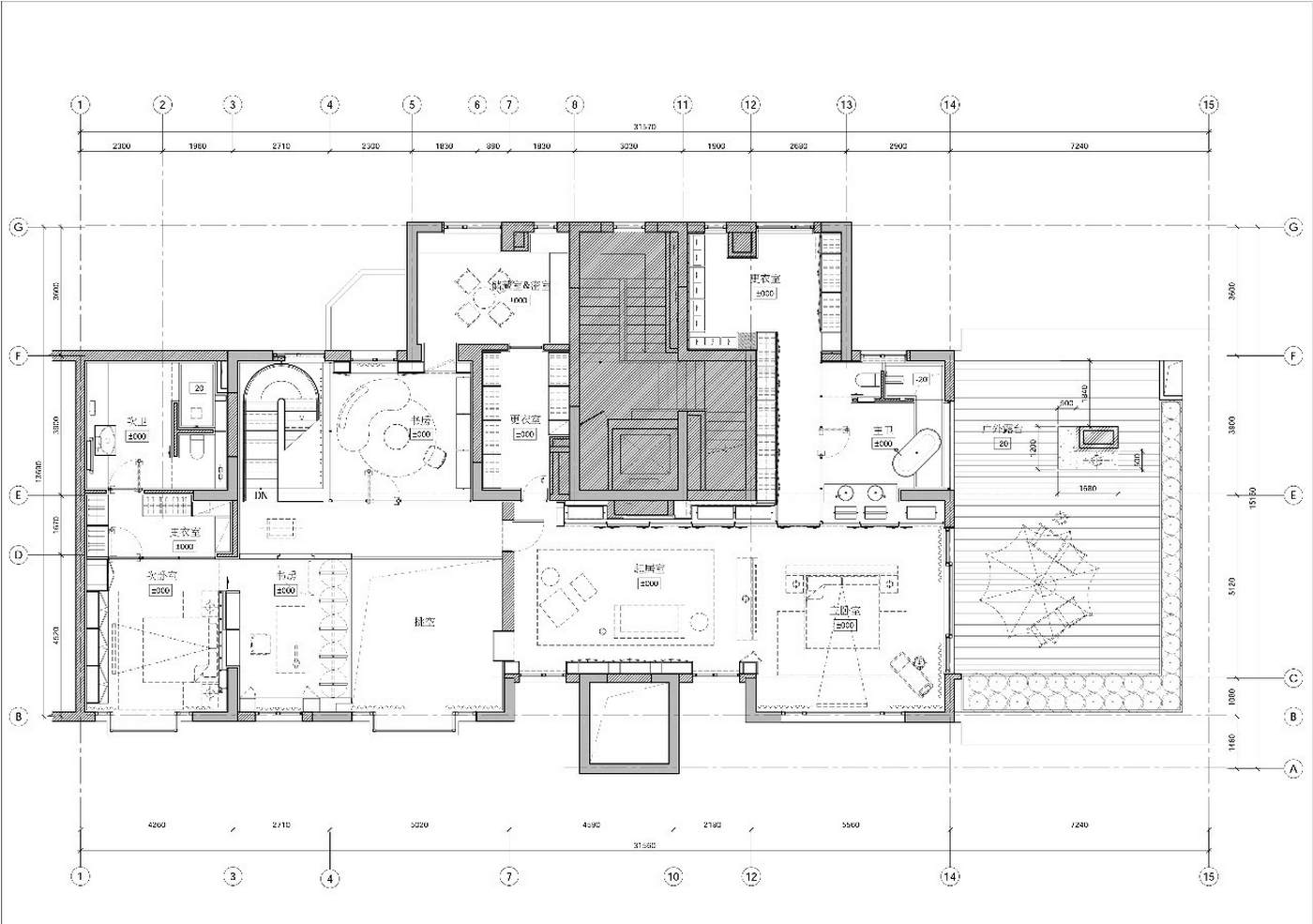
Li Wei Design – Shanghai Chen Mansion’s top luxury home
Advertisements
Please Login to leave a comment.






























Please Login to leave a comment.