






































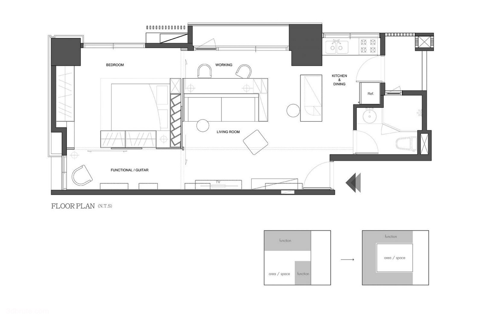
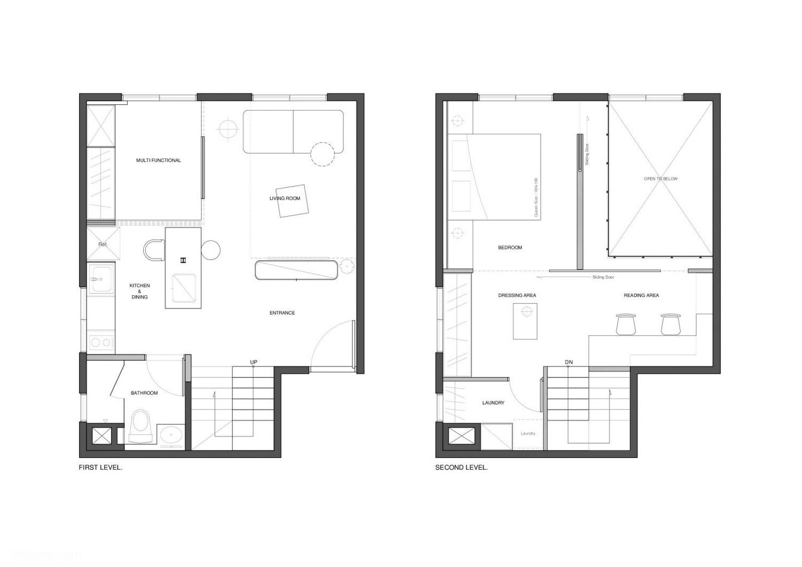
Living in a modern city you-do you want a single apartment like this too
Advertisements
Please Login to leave a comment.







































Please Login to leave a comment.