



















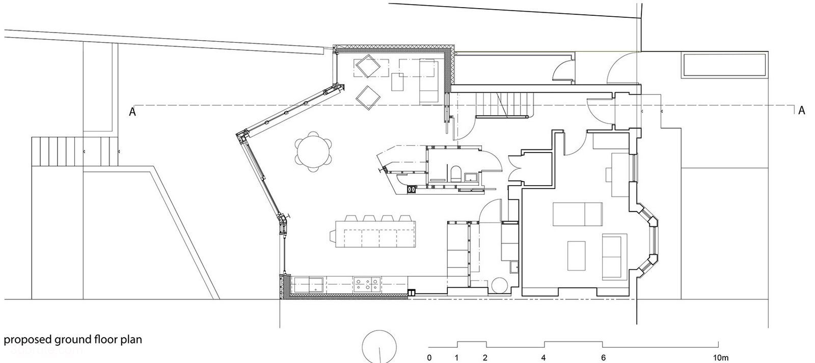
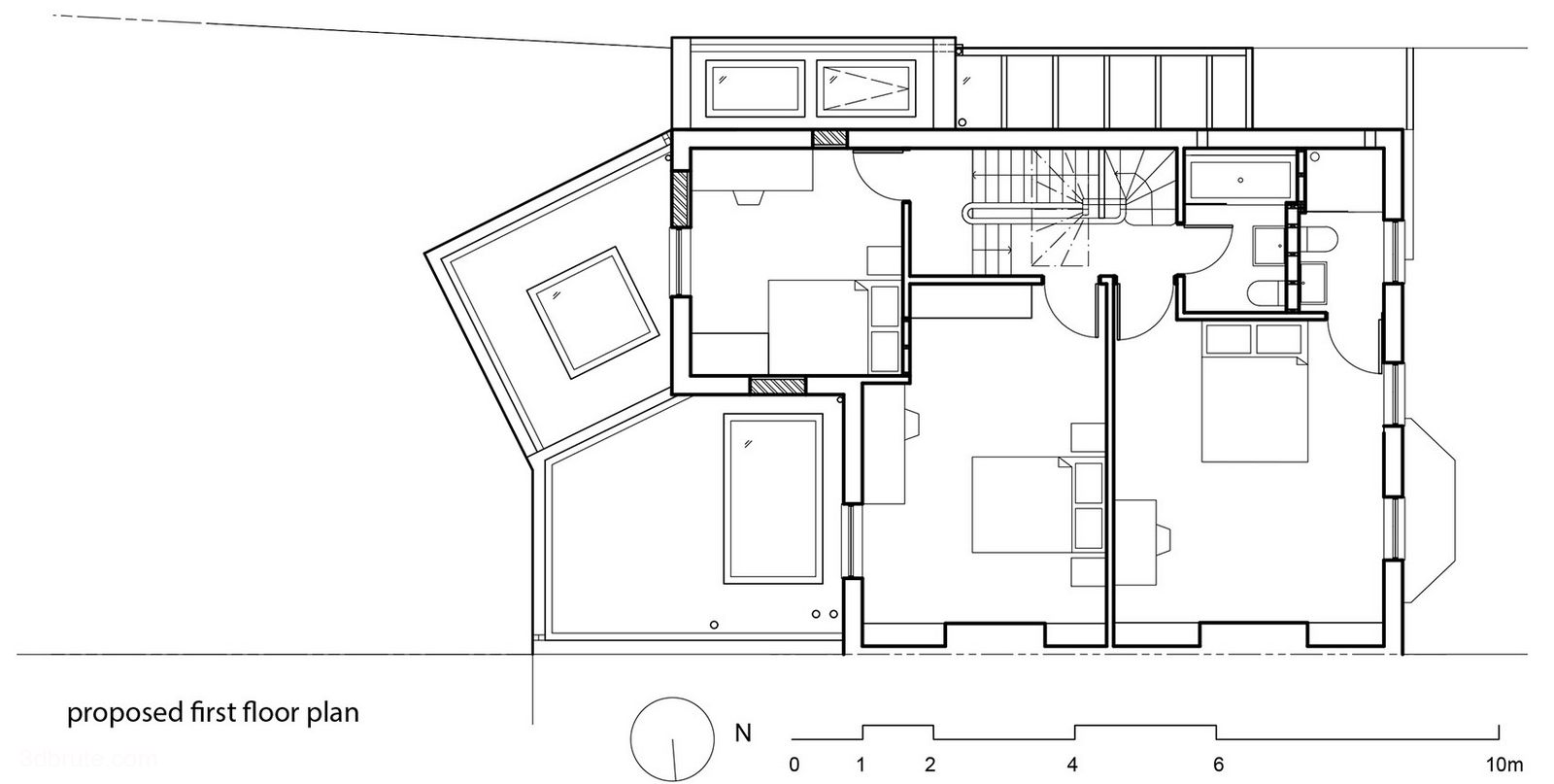
London Multi-generational residences-Homes and gardens become an extension of each other
Advertisements
Please Login to leave a comment.




















Please Login to leave a comment.