

















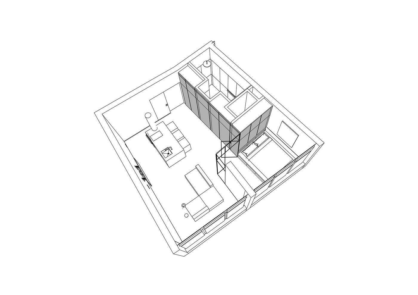
M3 Architects – 36m2 Apartment in Odessa, Ukraine
Advertisements
Please Login to leave a comment.


















Please Login to leave a comment.