

































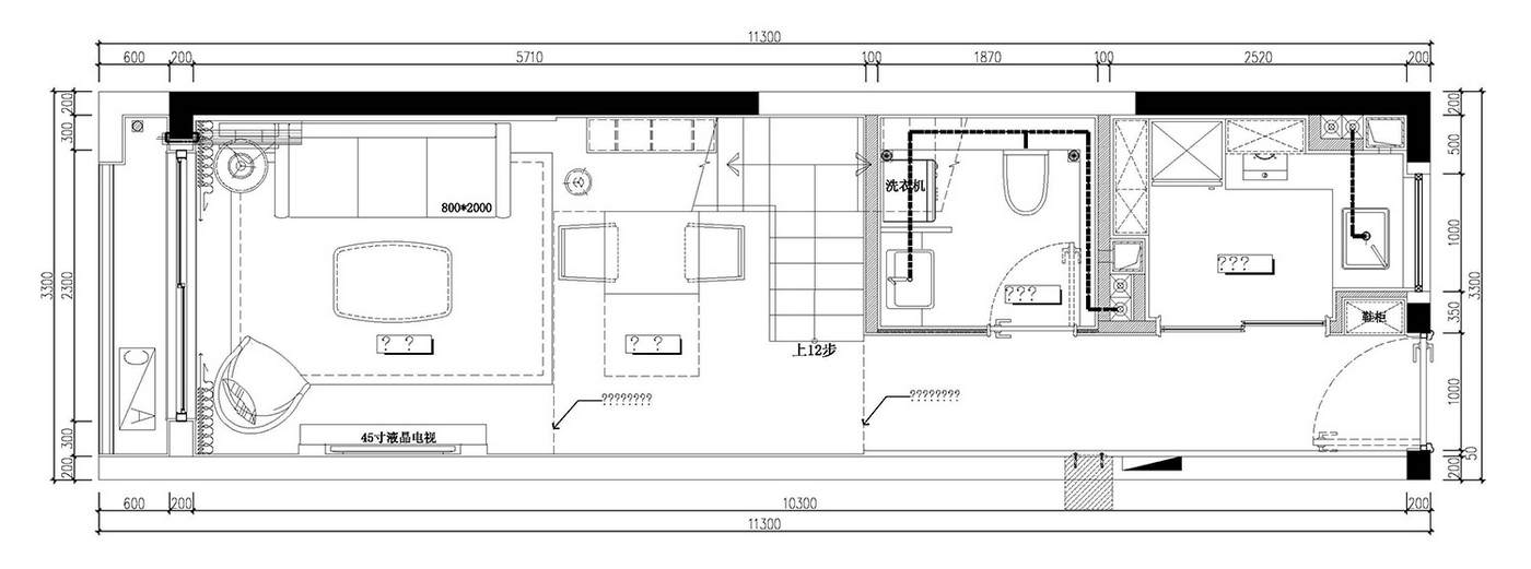
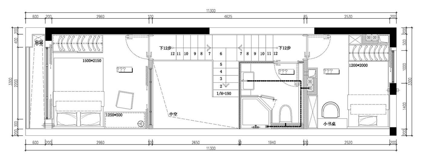
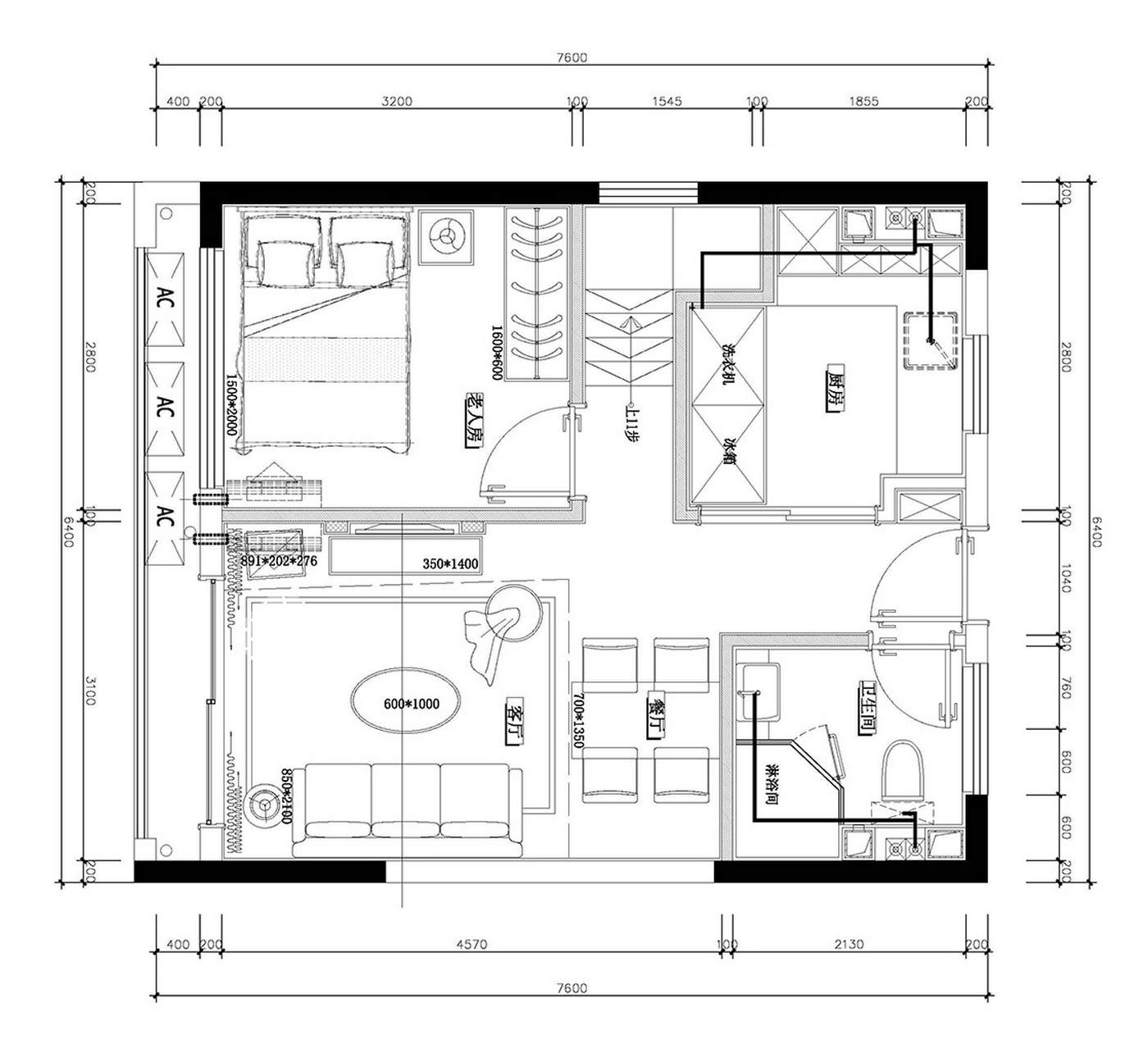
Natural color, interpretation of urban life fashion aesthetics HDESIGN
Advertisements
Please Login to leave a comment.


































Please Login to leave a comment.