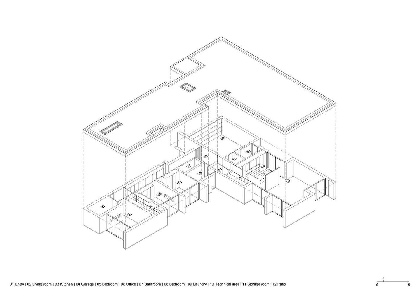
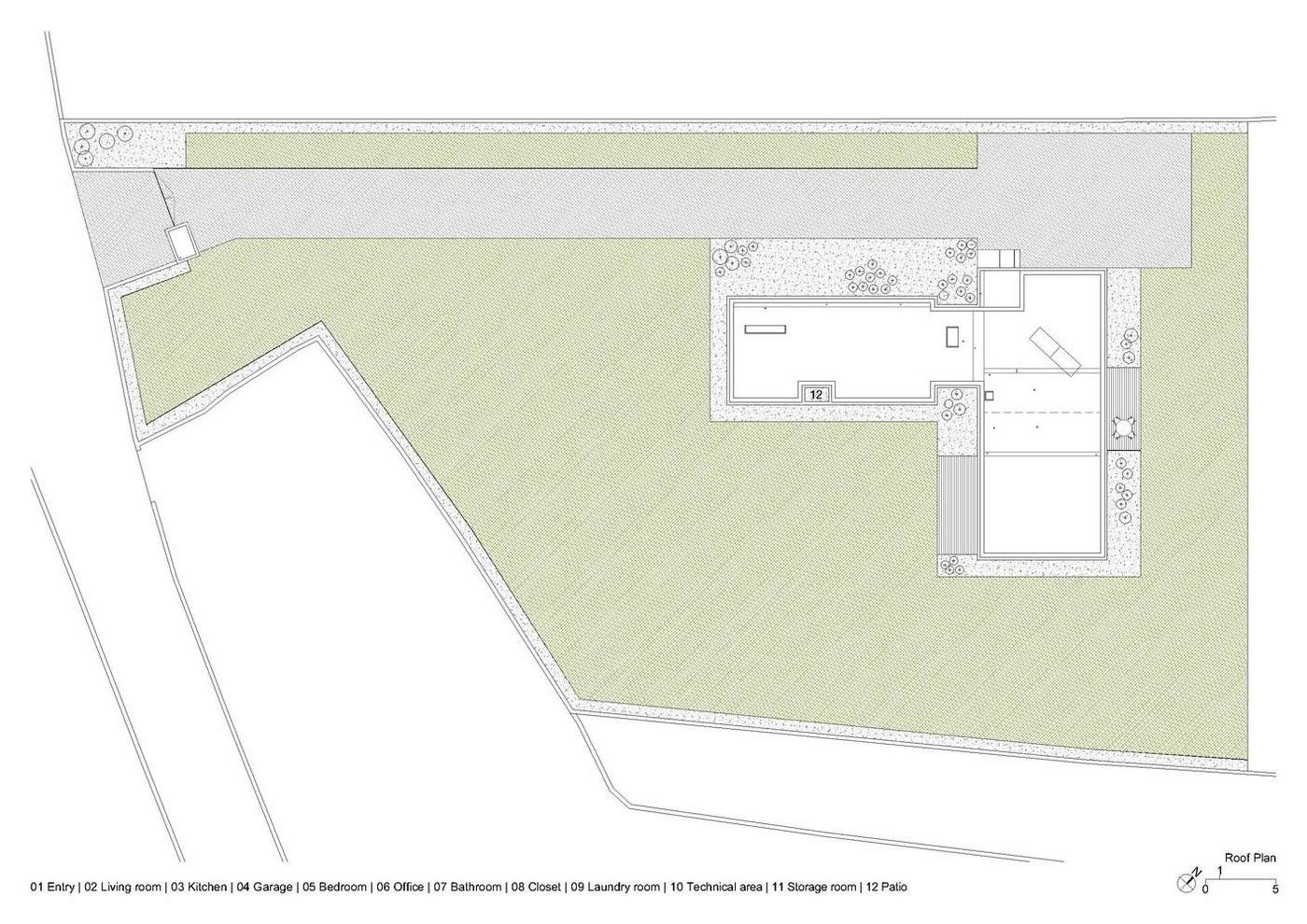
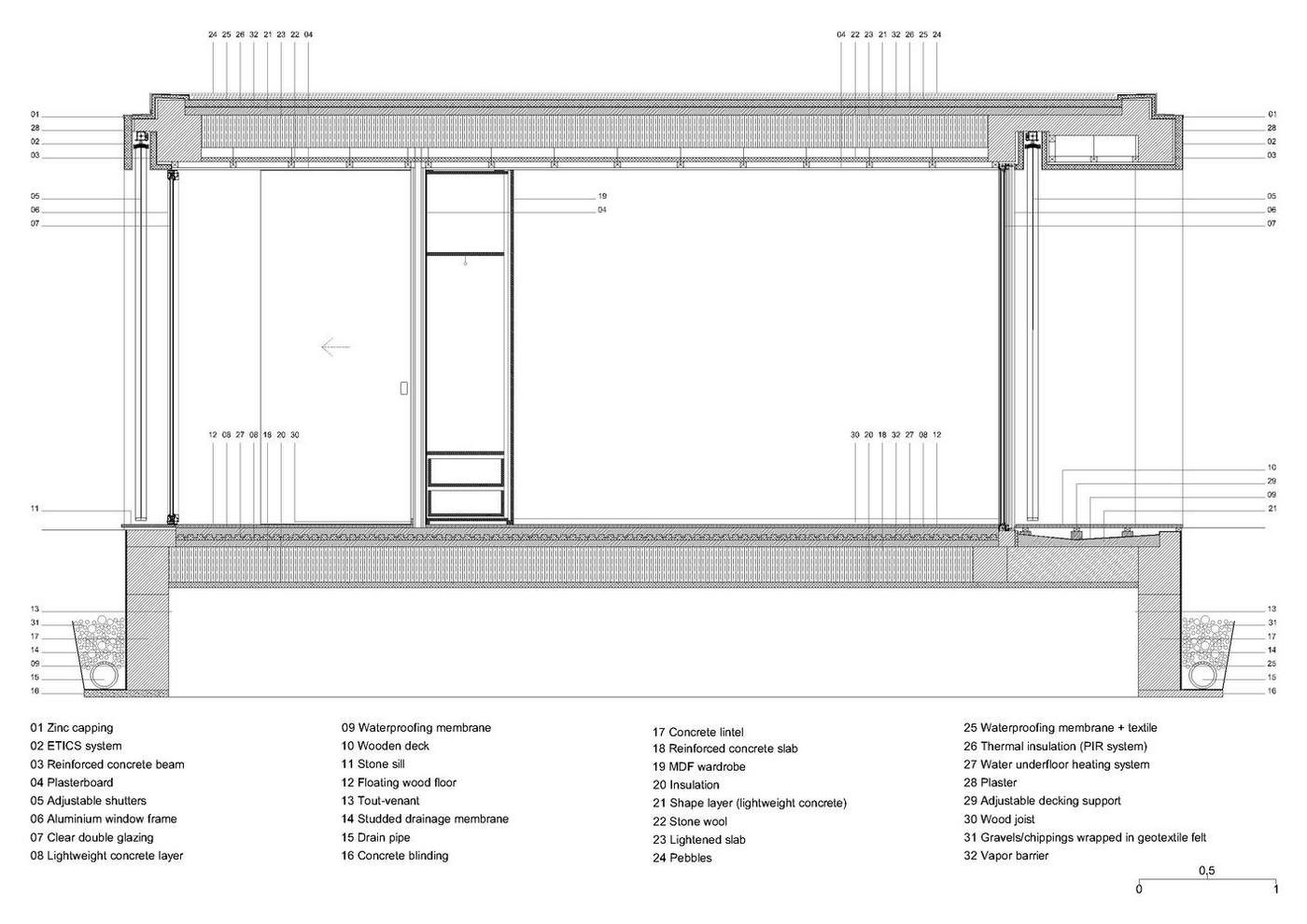
Rio Mau House ,Raulino Silva Home > idea > Modern style > Rio Mau House ,Raulino Silva محمد تركي 148 followers × Copy Link Share on WhatsApp Share on LinkedIn Share on Reddit Share on Telegram Share via Email Share on Line Share on Facebook Share on X Share on Pinterest 2,929 Advertisements Related products Show more products ▼ Tags: idea Please Login to leave a comment.