


























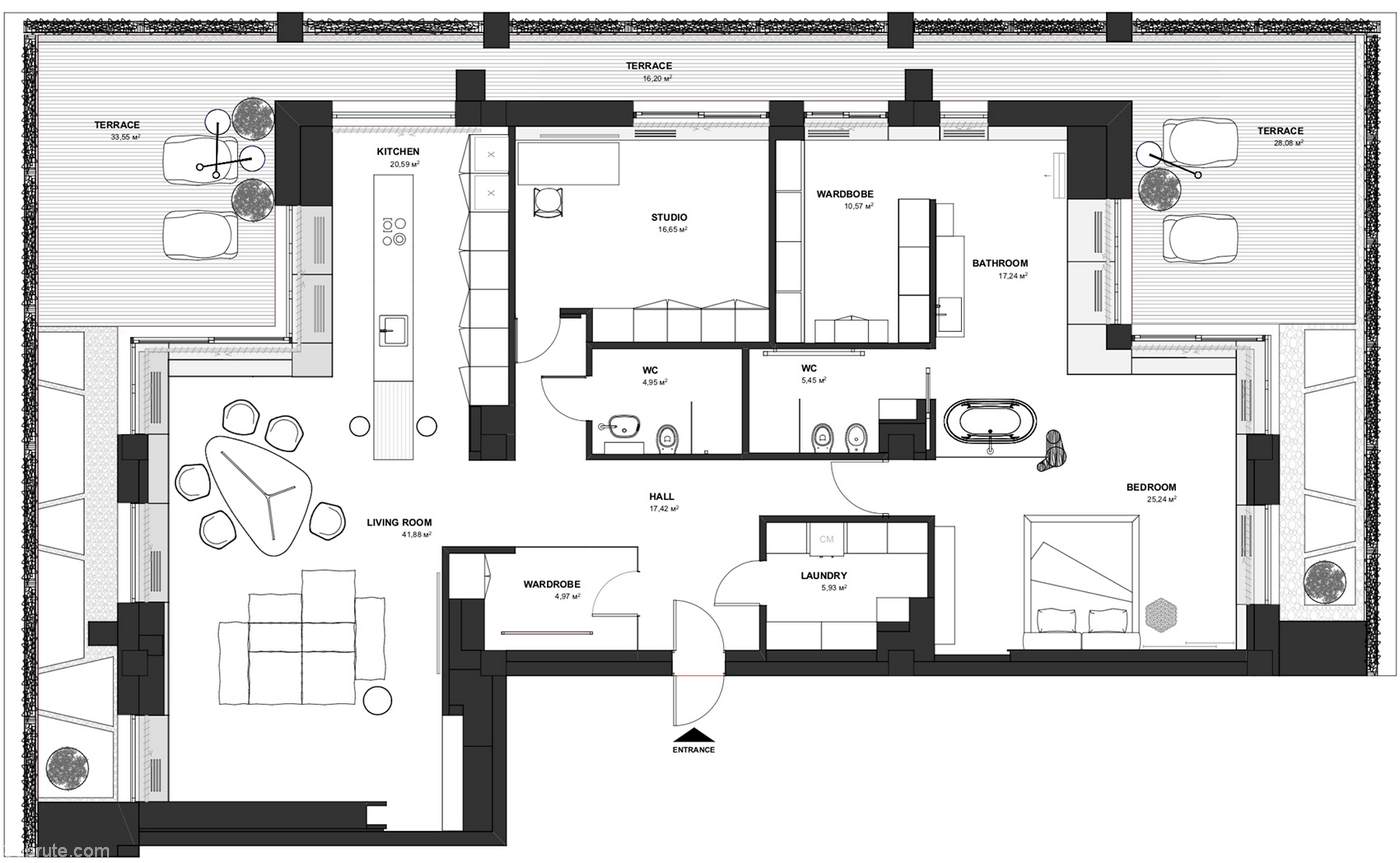
Soft Loft Design – Line Architects
Advertisements
Article Categories:
Modern style
Please Login to leave a comment.