























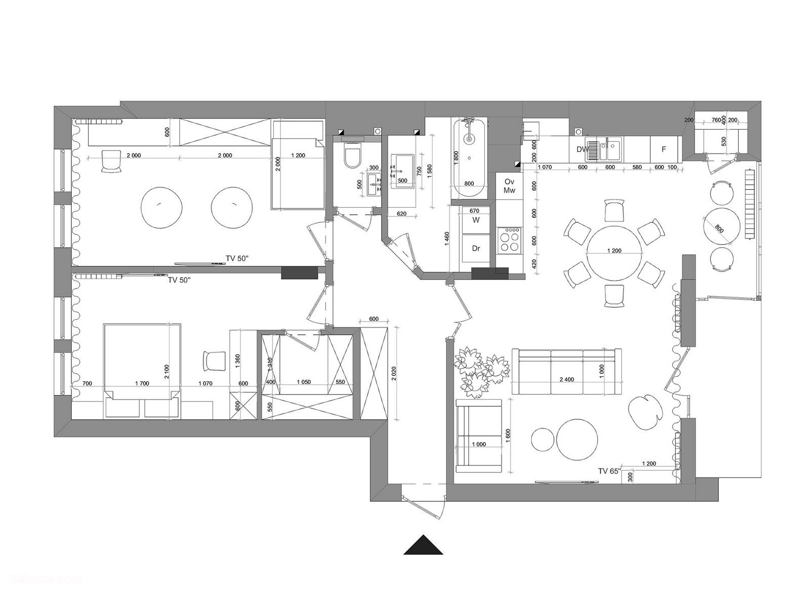
Tuozer First Release-50-3m2-Loft Apartment-Minimalist Nordic Residence
Advertisements
Please Login to leave a comment.
























Please Login to leave a comment.