







































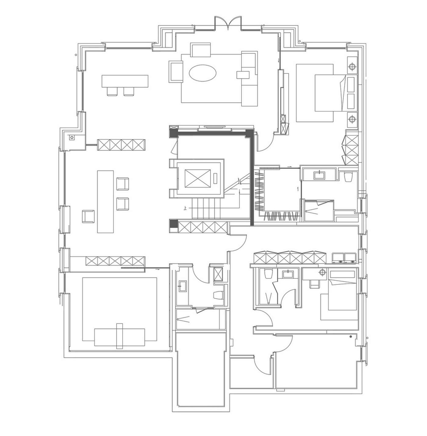
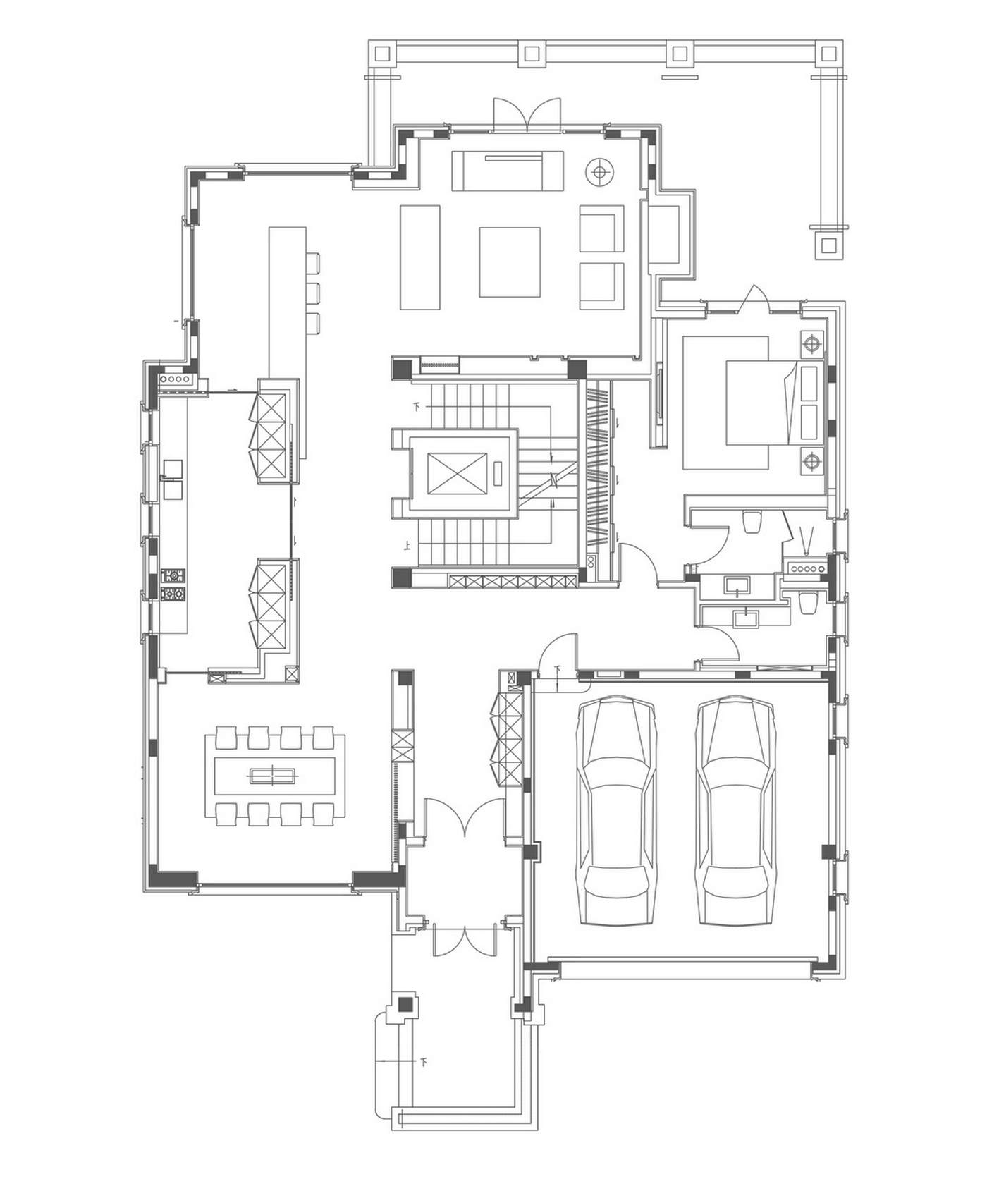
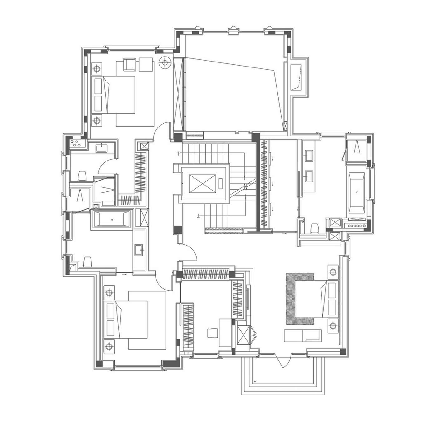
Unlimited Design – Sunac Beijing No.1 Manor
Advertisements
Article Categories:
Modern style
Please Login to leave a comment.